NED Living
CSA A277-Certified Modular Homes Built for Real Life
Modular homes engineered for workforce housing, rural properties, agricultural use, and off-grid living across British Columbia.
Questions? Call 604-865-1477


Why NED Living
CSA A277 Factory Certification
Built and inspected under CSA A277 standards, ensuring consistent quality, structural integrity, and simplified permitting across British Columbia.
Turnkey Site Installation
We handle foundation setup, septic systems, service tie-ins, and on-site placement — delivering a complete, move-in ready solution.
Designed for Rural & Workforce Housing
Ideal for farms, acreages, workforce accommodations, and off-grid properties where durability and efficiency matter.
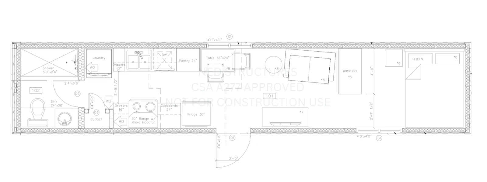
Configurable 40ft 1-Bedroom Model
Our current approved 40ft model offers a practical one-bedroom layout with flexibility to adjust interior configurations to suit your needs.
40ft 1-Bedroom Floor Plan



Pricing & Delivery
Our units are customized based on size, layout, and features. Below are typical starting points:
CSA A277-approved units starting from $69,900
Pricing varies based on size, layout, and customization
Project timelines vary based on specifications and site preparation — contact our team for a delivery estimate.
Contact us for a detailed quote based on your project and location.
Ready to Get Started?
Tell us about your property and project goals. We'll guide you through the process and provide a clear quote.
No obligation — response within 24 hours.
Or call 604-865-1477
Explore our other products
Offices
Finished modular workspaces installed with minimal disruption to your site.
ExploreStorage
Secure, weatherproof modular storage units for any residential or commercial site.
ExploreCustom Fabrications
Engineered-to-order structures built around your exact specifications.
ExploreGallery
Browse completed projects delivered across the Lower Mainland.
Explore